
Spring 2021

This foundational course provides students with an understanding of the International Building Code and how it impacts the design of structures. Students also explore how human-centered space planning creates environments that are highly functional.
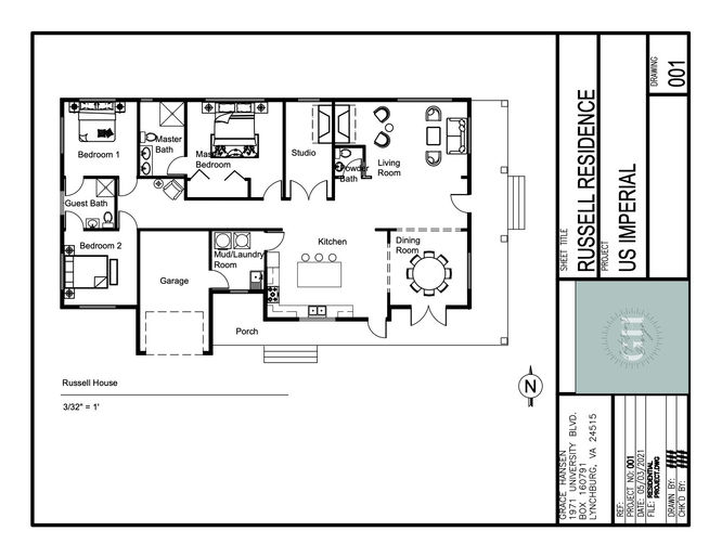
Residential Design Project
This residential project was our final project for this class. We were given a client profile with their wants and needs, and instructed to complete the design process. We started with bubble diagrams, which help us to visualize the layout and find the best one. We then took that layout to the blocking plan, which is the layout without the dimensions of walls and there are no doors or windows. The next step would be the preliminary plan. This is the draft that is complete with dimensions, furnishings, floors, windows, etc., but is more of a rough draft. The last step in the process is the final plan. The first three steps were done on paper, and the final plan was done in AutoCad.



